CCB型餐厨垃圾浆液处理泵
CCB型餐厨垃圾浆液处理泵是在引进国内外先进技术的基础上,结合国内水泵的使用特点而研制成功的新一代餐厨垃圾浆液处理泵类产品
产品详情
五、CCB型餐厨垃圾浆液处理泵性能参数表
| 流量 | 扬程 H | 转速 n | 轴功率 Pa | 配带电动机 | 效率 η | 必需 汽蚀 余量 | 整机 重 | |
功率 | 型号 | ||||||||
m3/h | m | r/min | kw | kw | % | m | kg | ||
50CCB8-20 | 6.4 8 9.6 | 21 20 19 | 2950 | 0.81 0.91 0.92 | 4 | Y112M-2 | 45 48 54 | 3.0 3.0 3.5 | 200 |
65CCB8-50 | 6.4 8 9.6 | 53 50 48 | 2950 | 2.0 2.2 2.3 | 5.5 | Y132M-2 | 47 50 55 | 3.0 3.0 3.5 | 250 |
65CCB10-20 | 8 10 12 | 21 20 19 | 1480 | 0.96 1.1 1.2 | 5.5 | Y132S-4 | 48 51 55 | 3.0 3.0 3.5 | 240 |
100CCB30-25 | 24 30 36 | 26 25 24 | 1480 | 2.6 3.0 3.4 | 7.5 | Y132M-4 | 65 68 70 | 3.0 3.0 3.0 | 350 |
125CCB150-25 | 90 150 180 | 30 25 20.6 | 2950 | 12.9 15.3 16.0 | 22 | Y180-2 | 57 67 63 | 4.7 5.2 5.7 | 570 |
125CCB135-32 | 80 135 160 | 36 32 28 | 2950 | 13.3 18.1 19.7 | 30 | Y200L1-2 | 59 65 62 | 4.7 5.2 5.7 | 630 |
150CCB180-25 | 108 180 216 | 27.2 25 23.2 | 1480 | 13.6 18.3 21.0 | 30 | Y200L-4 | 59 67 65 | 3.5 4.0 4.5 | 920 |
150CCB200-32 | 120 200 240 | 34 32 29 | 1480 | 18.5 25.6 28.7 | 37 | Y225S-4 | 60 68 66 | 3.5 4.0 4.5 | 970 |
200CCB300-25 | 180 300 360 | 28 25 22 | 1480 | 21.8 28.8 31.3 | 37 | Y225S-4 | 63 71 69 | 3.8 4.3 4.8 | 1150 |
200CCB270-32 | 162 270 324 | 35.2 32 27.8 | 1480 | 25.9 34.6 37.2 | 45 | Y225M-4 | 60 68 66 | 3.8 4.3 4.8 | 1280 |
250CCB550-25 | 330 550 630 | 27.1 25 22 | 1480 | 37.9 50.6 53.2 | 75 | Y280S-4 | 64 74 71 | 5.0 5.5 6.0 | 1860 |
250CCB500-32 | 300 500 570 | 37.3 32 28.5 | 1480 | 48.4 59.7 61.5 | 75 | Y280S-4 | 63 73 72 | 5.0 5.5 6.0 | 1950 |
300CCB650-22 | 390 650 750 | 25 22 20 | 980 | 42.2 53.4 56.8 | 75 | Y315S-6 | 63 73 72 | 4.0 4.5 5.0 | 2530 |
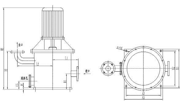
六、CCB型餐厨垃圾浆液处理泵安装尺寸表

型号 | L1 | L2 | H1 | H2 | H3 | H4 | H5 | A2 | A3 | B2 | B3 | n-φd |
50CCB8-20 | 335 | 460 | 20 | 490 | 1050 | 200 | 105 | 450 | 500 | 450 | 500 | 4-φ18 |
65CCB8-50 | 335 | 460 | 20 | 490 | 1050 | 200 | 105 | 450 | 500 | 450 | 500 | 4-φ18 |
65CCB10-20 | 335 | 460 | 20 | 490 | 1055 | 200 | 105 | 450 | 500 | 450 | 500 | 4-φ18 |
100CCB30-25 | 335 | 460 | 20 | 537 | 1140 | 200 | 105 | 450 | 500 | 450 | 500 | 4-φ18 |
125CCB150-25 | 335 | 460 | 20 | 550 | 1310 | 200 | 105 | 450 | 500 | 450 | 500 | 4-φ18 |
125CCB135-32 | 335 | 460 | 20 | 550 | 1420 | 200 | 105 | 450 | 500 | 450 | 500 | 4-φ18 |
150CCB180-25 | 430 | 530 | 25 | 630 | 1430 | 220 | 125 | 550 | 600 | 550 | 600 | 4-φ18 |
150CCB200-32 | 430 | 530 | 25 | 630 | 1530 | 220 | 125 | 550 | 600 | 550 | 600 | 4-φ18 |
200CCB300-25 | 430 | 570 | 25 | 780 | 1580 | 220 | 150 | 550 | 600 | 550 | 600 | 4-φ18 |
200CCB270-32 | 430 | 610 | 25 | 780 | 1650 | 220 | 150 | 550 | 600 | 550 | 600 | 4-φ18 |
250CCB550-25 | 450 | 680 | 25 | 970 | 1830 | 250 | 180 | 580 | 630 | 580 | 630 | 4-φ18 |
250CCB500-32 | 450 | 730 | 25 | 970 | 1830 | 250 | 180 | 580 | 630 | 580 | 630 | 4-φ18 |
300CCB650-22 | 450 | 840 | 25 | 1150 | 2360 | 250 | 180 | 580 | 630 | 580 | 630 | 4-φ18 |

进出口法兰 | 清淤口法兰 | ||||||||||||
DN | D1 | D2 | D3 | b | f | n-φd | DN | D1 | D2 | D3 | b | f | n-φd |
50 | φ99 | φ125 | φ165 | 20 | 3 | 4-φ18 | 100 | φ114 | φ136 | φ160 | 20 | 3 | 6-φ12 |
65 | φ118 | φ145 | φ185 | 20 | 3 | 4-φ18 | 100 | φ114 | φ136 | φ160 | 20 | 3 | 6-φ12 |
100 | φ156 | φ180 | φ220 | 22 | 3 | 8-φ18 | 100 | φ114 | φ136 | φ160 | 20 | 3 | 6-φ12 |
150 | φ211 | φ240 | φ285 | 24 | 3 | 8-φ22 | 150 | φ199 | φ225 | φ265 | 20 | 3 | 8-φ18 |
200 | φ266 | φ295 | φ340 | 24 | 3 | 8-φ22 | 200 | φ254 | φ280 | φ320 | 22 | 3 | 8-φ18 |
250 | φ319 | φ350 | φ395 | 26 | 3 | 12-φ22 | 250 | φ309 | φ335 | φ375 | 24 | 3 | 12-φ18 |
300 | φ370 | φ400 | φ445 | 26 | 4 | 12-φ22 | 300 | φ363 | φ395 | φ440 | 24 | 3 | 12-φ22 |













